Low Range geht nicht
Low Range geht nicht
Hallo!
Schon seid ich meinen Diggen habe funktioniert der Low Range nicht.
Stellmotor ist neu und als Fehler ausgeschlossen
4x4 funktioniert
Bedinungsfehler (wann einschalten etc.) ausgeschlossen
Lampe des Low Range leuchtet nicht
Kein verändertes Verhalten nach Drücken des Schalters
Sicherungen ok
Was tun?
Gruß und Danke
Schon seid ich meinen Diggen habe funktioniert der Low Range nicht.
Stellmotor ist neu und als Fehler ausgeschlossen
4x4 funktioniert
Bedinungsfehler (wann einschalten etc.) ausgeschlossen
Lampe des Low Range leuchtet nicht
Kein verändertes Verhalten nach Drücken des Schalters
Sicherungen ok
Was tun?
Gruß und Danke
-
Alterspinner
-
Falk
-
Falk
-
Falk
-
Falk
-
Alterspinner
Das hört und fühlt man.
Du scheinst entweder einen Kabelbruch in der Schalterstellung 4X4Low zu haben,
oder der Schalter selbst ist defekt.
Also ausbauen und durchmessen.
Die Ohmwerte des Drehknopfs am Armaturenbrett:
360 Ohm
1.1 KOhm
3.9 KOhm
Du scheinst entweder einen Kabelbruch in der Schalterstellung 4X4Low zu haben,
oder der Schalter selbst ist defekt.
Also ausbauen und durchmessen.
Die Ohmwerte des Drehknopfs am Armaturenbrett:
360 Ohm
1.1 KOhm
3.9 KOhm
1995 OHAVAU
KTM DUKE 125 2011
Honda CS 250 K1 (Scrambler) 1969
Ducati SS 939 S
KTM DUKE 125 2011
Honda CS 250 K1 (Scrambler) 1969
Ducati SS 939 S
-
Falk
Ja, das rummst ganz schön.oldi007 hat geschrieben:das schalten in Low Range hört man doch oder?
Beim Explorer I ... tippt man - drückt man - klopft man ... oder tritt man an den Schalter. Aber niemals drehen !mijube hat geschrieben: ... des Drehknopfs am Armaturenbrett:
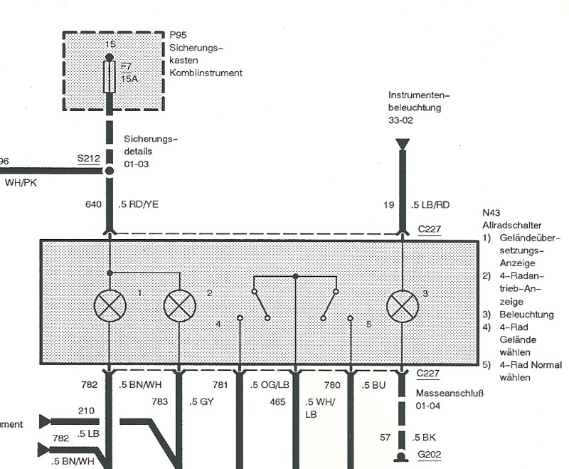
Hier mal die Elektrikseite des Schalters:

Bin kein Elektrofreak !
Aber wenn ich das richtig interpretiere, muss man am Schalter-Stecker:
- zuerst: blau mit weiß/hellblau brücken = 4x4 eingeschaltet
- dann: orange/hellblau mit weiß/hellblau brücken = 4x4low eingeschaltet
Masse ist hier wohl nur für die Lämpchen zuständig (?).

Kann ja mal einer verifizieren.